Gemini: A 35' Diameter Double Dome, 1,882 SF, Three-Bedroom, Two-Bath Floor Plan.

Gemini: A 35' Diameter Double Dome, 1,882 SF, Three-Bedroom, Two-Bath Floor Plan

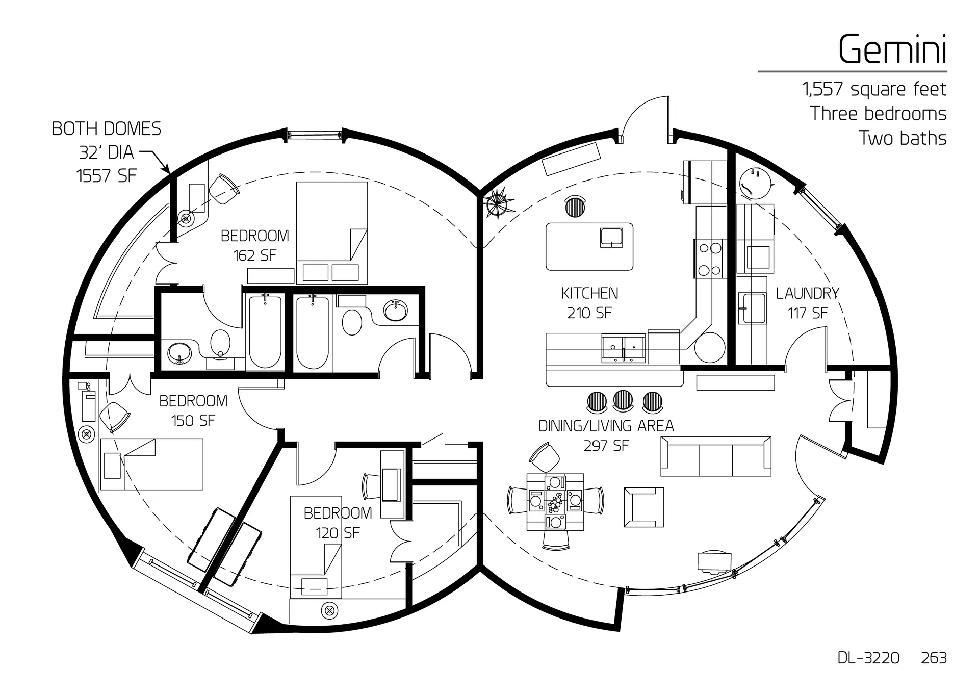
This double-domed house has a nice big kitchen and a built-in garage. The primary bedroom has a large closet, a roomy bathroom, and space for a desk. The two guest rooms share a Jack-and-Jill bath. Switching the stove and sink placement and adding a window over the sink might be nice.